Project Update – Refurb Africa Project February 4
February 4, 2022
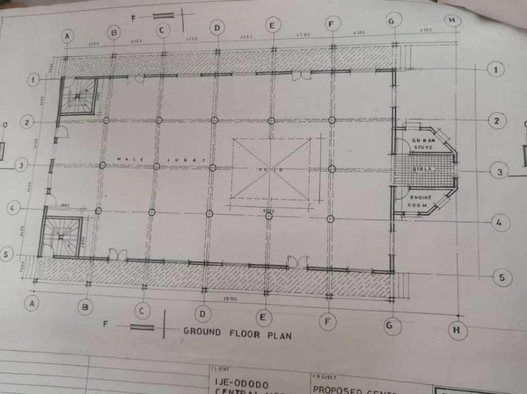
February 4, 2022 UPDATE on our Refurb Africa Charitable Project.
We will be starting a new Mosque project next week more ambitious than before. It is practically a new build. We hope you will join us on this new and exciting journey In’sha Allah! – May Allah help us build this mosque, ameen.
Please enjoy the pictures below and support this wonderful project.
Africa Charitable Project Update 31 January to 6 February 2022
- Keep tuned to this site as it is updated every Friday InshaAllah.
- Please remember everyone in your prayers. Jazak Allah Khairun!
- Thank you so much for your continued support! الحمد لله
The work carries on from week to week throughout the year. We thank our brothers and sisters for donating to this wonderful project. May Allah accept your donations and Bless you & your family, ameen. This is one of the blessings from Allah that we help each other out. The Mosque is getting a makeover, الحمد لله
